Realizace Hotelu Corso Marienbad
Hotel Corso se nachází v těsném sousedství depandance Romantic Suite na Hlavní třídě proti kolonádě s výhledem do nádherného lázeňského parku. Hotel pamatuje dávné doby, kdy se zde scházeli lázeňští hosté na odpoledních čajích a večerních hudebních repordukcích a diskotékách, patříval k nejoblíbenějším místům zábavy.
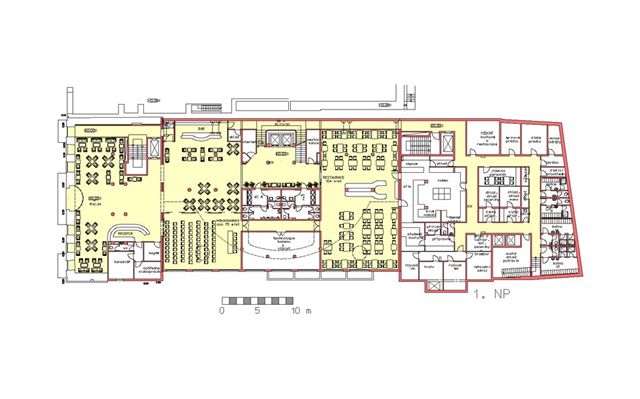
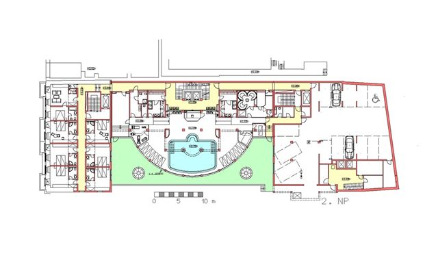
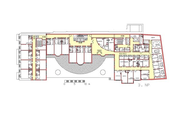
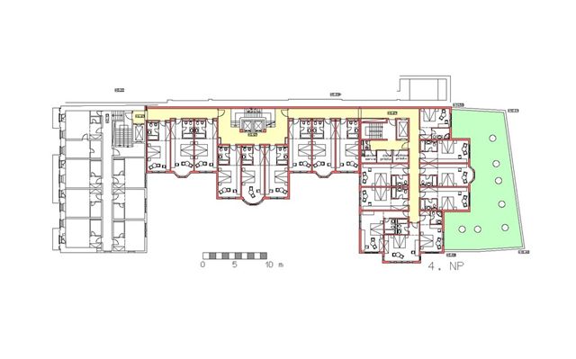
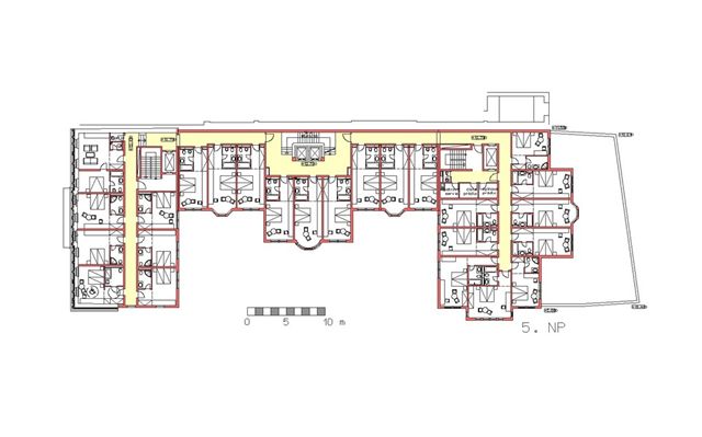
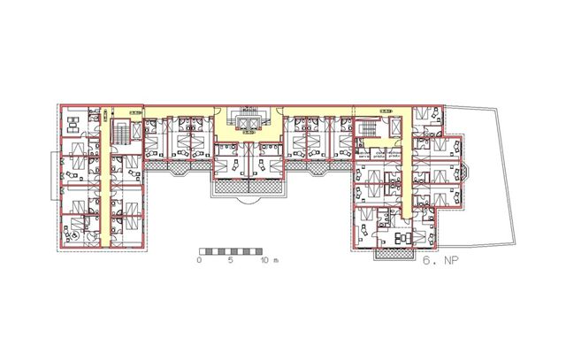
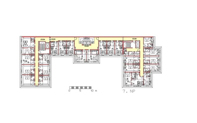
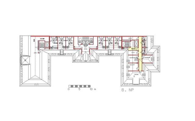
V současné době je schválená stavební dokumentace a vydané platné stavební povolení. Celková plocha pozemku je 1667 m2. Projekt rekonstrukce pořítá se čtyřhvězdičkovým hotel s 8 nadzemními, 1 podzemním podlažím, s celkovou užitnou plochou 8827 m2. Projekt zahrnuje 110 pokojů (z nichž je 13 apartmánů), restauraci (124 míst), lobby bar, kongresový sál, bazén, wellness, balneo, kanceláře a garáže.








